🌐Кейс: Будівництво локальної мережі у бізнес-центрі в м. Харків

До нашої компанії звернувся замовник із завданням спроєктувати та реалізувати повноцінну локальну мережу для нового бізнес-центру в місті Харків. Основною метою було створення надійної, масштабованої ІТ-інфраструктури, яка забезпечить стабільну роботу інтернету, телефонії, систем відеоспостереження та інших сервісів для орендарів приміщень.

Ключові аспекти проєктної частини.

  • Array
    Проведено технічне обстеження будівлі та збір вимог від замовника.
  • Array
    Розроблено структуровану кабельну систему відповідно до зонального розміщення офісів, загальних приміщень та технічних кімнат.
  • Array
    Спроєктовано топологію мережі з урахуванням поділу на вузли та резервування каналів.
  • Array
    Заплановано розміщення 7 телекомунікаційних шаф по поверхах для ефективного охоплення всієї площі.
  • Array
    Передбачено оптичне з'єднання між вузлами — розварено близько 36 волокон між шафами.
  • Array
    Підготовлено повний комплект проєктної та виконавчої документації.
problems

6 ключових аспектів проєктної частини кейсу

Крок 1 Аудит об'єкта та визначення технічних вимог
Крок 2 Розробка структурованої кабельної системи (СКС)
Крок 3 Побудова логічної мережевої топології
Крок 4 Оптимальне розміщення мережевого обладнання
Крок 5 Проєктування оптичної магістралі
Крок 6 Формування технічної документації
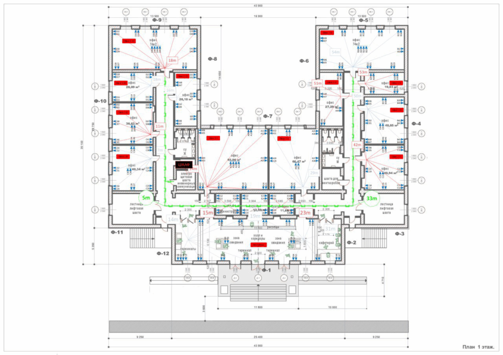
Аудит об'єкта та визначення технічних вимог

На початковому етапі було здійснено детальний аудит приміщень бізнес-центру площею понад 10 000 м². Фахівці нашої компанії зібрали вихідні дані щодо архітектурних особливостей будівлі, запланованих зон використання, а також специфіку вимог замовника щодо швидкості, надійності та масштабованості мережі. Це дозволило сформувати чітке технічне завдання на проєктування.

Розробка структурованої кабельної системи (СКС)

Розроблена СКС охопила всі ключові приміщення — офісні блоки, загальні зони, серверні кімнати та технічні простори. Ми спроєктували маршрути прокладання кабельних трас з урахуванням оптимальної довжини, мінімізації перешкод та відповідності будівельним нормам.

Побудова логічної мережевої топології

Було створено логічну схему мережі з чітким поділом на сегменти для кожного поверху й функціонального блоку. Топологія передбачає централізовану модель з підтримкою резервних каналів, що забезпечує стабільність і відмовостійкість системи навіть у разі часткових збоїв обладнання або каналів.

Оптимальне розміщення мережевого обладнання

У межах проєкту було передбачено встановлення 7 телекомунікаційних шаф — по одній на кожному поверсі, з урахуванням логістики, розміщення користувачів та відстаней до точок підключення. Таке рішення забезпечує рівномірне навантаження на мережу та зручність технічного обслуговування.

Проєктування оптичної магістралі

З метою забезпечення високошвидкісного з’єднання між поверхами було закладено магістральну оптичну лінію, що поєднує всі 7 шаф. Усього розварено близько 36 волокон, що дозволяє організувати кілька незалежних каналів для резервування та майбутнього розширення пропускної здатності.

Формування технічної документації

За результатами проєктування було сформовано повний пакет технічної документації: плани трасування, схема підключень, специфікація обладнання, таблиці портів, пояснювальна записка. Документація відповідає стандартам структурованих кабельних систем та слугує базою для наступного монтажу і обслуговування.

team

На етапі проєктування команда інженерів виконала повний цикл робіт із планування телекомунікаційної інфраструктури будівлі. Основним завданням було створення надійної, масштабованої та функціональної локальної мережі, яка задовольняє потреби орендарів та сервісних систем бізнес-центру.

Євген , COO в Ukrfast
team

Результатом проєкту стала впорядкована, технічно грамотна мережа, яка не лише відповідає чинним вимогам, але й є надійним фундаментом для подальшого розвитку ІТ-інфраструктури клієнта. Ми вдячні за довіру та впевнені, що наша робота стане запорукою стабільності для всієї цифрової екосистеми підприємства.

Вiктор , COO в Ukrfast
logo

У Вас є ідея? Ми маємо навички, давайте об'єднаємося

Розкажіть більше про себе та про те, що ви маєте на увазі?

    ×

    Замовити послугу